
土地家屋調査士は、個人に与えられる資格であり本人が死亡したり、廃業した場合には業務を続けることができません。
しかし、土地家屋調査士法人は複数人の土地家屋調査士で構成されていますので、一人の土地家屋調査士に何かあった場合でも他の土地家屋調査士で対応が可能です。
特に多くの土地を所有されている方は、土地家屋調査士法人を選んだ方が将来に向けて安心です。
この記事では実際あった相談で、昔からお願いしていた土地家屋調査士が廃業してしまい連絡も取れなくなってしまったため弊社のブログ記事を見てどうすればいいかのご相談でした。
このような事例は決して少なくなく、士業の問題の一つではないでしょうか?
ご相談の内容を記事の目次としてそれぞれ解説していますのでご参考にしてください。
最後までお読みいただければ幸いです。
1,代わりの土地家屋調査士を見つける方法

土地家屋調査士の代わりを見つけるための具体的な方法をいくつか紹介します。
(1)インターネット検索
インターネットは情報の宝庫です。
「土地家屋調査士」と地域名を組み合わせて検索することで、近隣の土地家屋調査士を簡単に見つけることができます。
多くの土地家屋調査士がウェブサイトを持っており事務所の詳細を確認することができます。
弊社「土地家屋調査士法人えん」もホームページを持っていますのでご参照ください。
土地家屋調査士法人えんホームページ https://en-groups.com/
(2) 各都道府県にある土地家屋調査士会に相談
土地家屋調査士会は、各都道府県にあり土地家屋調査士を紹介してもらえます。
どのような形で選んで紹介してくれるかは不明ですが、全員が国家資格を持った資格者ですから安心できると思います。
各都道府県の土地家屋調査士会は下記で確認できます。
日本土地家屋調査士会連合会ホームページ
https://www.chosashi.or.jp/consulting/nationwide/
2,廃業した土地家屋調査士の影響とは?

廃業した土地家屋調査士の影響は、想像以上に大きいと思います。
一番大きな影響は、土地を測量して現地の境界位置をわかっていた土地家屋調査士がいなくなってしまう事だと思います。
我々もそうですが、土地を測量したデータはしっかり管理していて仮に境界標が無くなってしまった場合でも容易に復元できるようにしております。
このようなデータがなくなってしまうことは、結構大変な事で我々が相談された場合でも再測量が必要になるという回答になります。
データがなくても登記がされていて地積測量図が法務局にあるケースもありますが、提出された年度によっては現地復元性がない図面もあります。
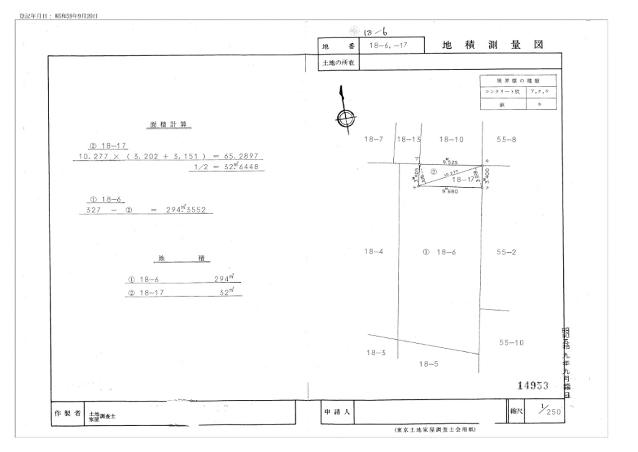
地積測量図は、平成17年の不動産登記法の改正によって土地の求積方法が三斜求積から座標求積に変更され座標により現地復元性が高くなっています。
しかし、それ以前は座標の記載のない三斜求積の図面が多く現地の復元性が乏しいと言われています。
言い換えれば、平成17年以降の座標が記載されている地積測量図であれば現地の境界を復元することができますが、それ以前は難しいということになります。
境界の復元に関して詳しくお知りになりたい方は、「見えない境界を見える化する、境界標復元とは何か?徹底解説!」をご参照ください。
https://www.en-groups.com/blog/boundary%e2%80%90marker%e2%80%90restore
地積測量図の見方について詳しくお知りになりたい方は、「地積測量図の見方がわかる、作成者である土地家屋調査士が徹底解説」をご参照ください。
https://www.en-groups.com/blog/geographic-survey-map-viewpoint
下記は、座標求積と三斜求積の図面となります。
(座標求積の図面)

座標求積の地積測量図には、座標が記載されています。
この座標はX軸とY軸で表されていて位置の特定ができます。
(三斜求積の図面)

三斜求積の地積測量図には、座標が記載されていなく位置の特定が難しいです。
また、残地求積と言って土地を分ける分筆登記の際に分割する一つの土地だけ求積してもう一つは登記簿記載の面積から差し引く求積方法も認められていました。
一般的な三斜求積は三角形を作り「底辺×高さ÷2」で面積を求めますが、残地求積はこのような三角形の求積もなく単純に引き算で求めるだけとなるため位置の特定はできません。
その他にも大きな問題はあります。
依頼していた土地家屋調査士が死亡や病気などにより業務が未解決のまま放置されるケースです。
売買や相続などで土地境界確定をしなければならない状態で放置されてしまうと売買ができず契約が流れてしまったり、相続税が支払えないということにもなり得ます。
3, 土地家屋調査士選びのポイントと注意事項

今回のご相談での回答は、廃業した土地家屋調査士の代わりを見つけるポイントは、土地家屋調査士法人に絞って探すことを提案いたしました。
今回のご相談者様が多くの土地を保有していたため将来的なことを考慮してご提案でした。
今回はこのようなご提案をしましたが、一般的にはどのような土地家屋調査士を選べばいいのでしょうか?
ポイントと注意点を解説します。
土地家屋調査士を選ぶポイントは大きく分けると3つあります。
①費用
②スピード
③安心・安全
それぞれについて解説します。
①費用
土地家屋調査士事務所(法人)によって費用は異なります。
土地家屋調査士の報酬は、〇〇万円と決められているわけではないため事務所によって金額が異なります。
安さを求めるならばいくつかの土地家屋調査士事務所に連絡して相見積もりを取ってみるのもいいかもしれません。
弊所土地家屋調査士法人えんは、法人として業務を行っているため事務方等の非生産部門が存在します。
そのため、個人事務所と比べると金額は高くなってしまいます。
しかし、法人には法人のメリットがあり、次で説明します②スピード、③安心・安全においては個人事務所を上回ると思っています。
②スピード
スピードも事務所によって異なります。
業務が忙しい事務所は、どうしてもスピードが遅くなる傾向にあります。
逆に業務がそれほど忙しくない事務所はスピーディーな対応ができるのではないでしょうか?
また、個人事務所と法人でもスピードの差はあると思います。
法人は、人数も多いので新規案件への対応スピードは上がると思います。
③安心・安全
土地家屋調査士は、土地家屋調査士法第1条で、「土地家屋調査士は、不動産の表示に関する登記及び土地の筆界を明らかにする業務の専門家として、不動産に関する権利の明確化に寄与し、もって国民生活の安定と向上に資することを使命とする。」と規定されています。
土地家屋調査士法人えんは知識の習得や技術の研鑽をし続けていき、皆さんの大切な不動産(土地・建物)を安心・安全な価値にするのが土地家屋調査士の使命だと考えています。
そのために皆さんが相続で子、孫と不動産をつないでいくように我々も次世代の土地家屋調査士につないでいけるように法人化しています。
土地家屋調査士という資格は個人に与えられる資格で、個人事務所の場合は、資格者が業務を廃業したり亡くなってしまった場合は、事務所がなくなります。
このようなケースだと測量してもらった土地で困ったことがあった場合どこに相談していいのかわからないということもあり得ます。
土地家屋調査士を選ぶポイントは、何を重要視するのかによって異なると思います。
4, まとめ
昔からお願いしていた土地家屋調査士が廃業してしまった、どうしたらいいでしょうか?という実際にあった相談を記事にしてみました。
平成15年に法改正がなされる前は、土地家屋調査士は法人化ができなく個人事務所しか認められていませんでした。
個人事務所だからといって先生が廃業したら終わりという訳ではなく、お子様が土地家屋調査士になるケースや補助者として勤務していた方が土地家屋調査士になって引き継いでいくというケースもあります。
また、土地家屋調査士法人だから100%大丈夫だという保証もありません。
大切なのはどれだけ親身になって皆様の大切な財産である不動産を扱ってくれるかだと思います。
本文でも書きましたが多くの事務所がホームページを持っています。
これらを参考にして信頼できる事務所を探すことをおすすめいたします。
この記事が皆様の大切な不動産を安心・安全価値にする一助になれば幸いです。



